
Nantes (44)
Le Bas Chantenay est un quartier industriel en mutation, en bord de Loire. Dans cette ambiance de collage urbain, une maison ferroviaire des années 20 est restructurée en bureaux, espaces nomades, collaboratifs et de réception pour l’entreprise IDEA.
Pour adoucir la cohabitation des activités logistiques et tertiaire, la proue de la parcelle est transformée en un jardin montant de plain-pied avec la maison, dont le rez-de-chaussée surélevé rappelait sa proximité avec la Loire. L’ensemble accompagne la restructuration du bas-Chantenay et son maillage piéton. Dans cet environnement changeant, le projet répond aux enjeux de surimpression architecturale et mémorielle, et met en valeur un patrimoine, si commun soit-il.
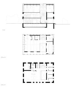
Débarrassée de son toit originel, la maison est réhabilitée en un socle maçonné à arcades surélevé d’un volume en résille bois. Dans la partie rénovée, la logique architectonique – une enceinte maçonnée subdivisée par un mur de refend et un noyau maçonné – est remobilisée au profit de nouvelles pratiques. Les espaces ouverts s’installent entre ces invariables, qui articulent zones calmes, collectives et techniques.
La rénovation se structure autour de deux découpes franches : une verticale pour la trémie et une horizontale pour l’arasement. Contre le refend, les planchers bois sont ouverts en un atrium transversal et toute hauteur. Ce vide induit de nouvelles qualités d’usages. Il diffuse un confort lumineux et des flux simplifiés dans le bâtiment. Au dernier niveau, la surélévation prolonge la logique et les qualités des étages inférieurs. Autour de l’atrium, un espace de réception, des salles de réunion et des terrasses-belvédère regardent le grand paysage industriel. Pour ne pas bouleverser la structure existante, la charpente repose directement sur les façades sans reprise intermédiaire. Elle forme un exosquelette de bois, habillé de modules de résille, filtrant les vues. Depuis l’extérieur, ce moucharabieh joue sur les perceptions cinétiques. Selon le point de vue, ce monolithe sans échelle fait écho aux volumes des hangars voisins ou révèle une dentelle bois.
L’atelier Fichtre est associé à la démarche architecturale pour appuyer la sensibilité du projet par leur regard artistique et conforter une ambiance globale unifiée. Ils proposent un garde-corps en bois cernant l’atrium à la façon d’un décor de théâtre inversé. Par son côté massif, il crée une barrière acoustique et séquence les déambulations. En lien, de généreux placards bois épaississent les parois existantes. Ils mettent à l’abri des zones de travail de l’atrium et offrent du stockage aux travailleurs nomades. Ces dispositifs favorisent les vues longues et structurent la circulation entre les différents espaces.
Dès la conception, le projet s’inscrit dans une démarche de réemploi. Le mobilier de bureau, réalisé par Fichtre, transforme ainsi les anciens bureaux de l’entreprise en grandes tablées pour les travailleurs de passages. Les matériaux déposés sont réinvestis : la charpente est réutilisée en bancs et les tuiles empilées de la couverture deviennent les murs moucharabieh de l’abri vélo.
Programme : Réhabilitation et surélévation accueillant des bureaux et espaces collaboratifs
Livré en 2022
Surface : 848 m²
Maître d’ouvrage : IDEA Groupe
Maître d’œuvre : LAUS architectes (mandataire)
Garde-corps atrium et mobiliers en réemploi : Fichtre
Bureaux d'études : Ascia (structure), Emenda (fluides), ECMS (économiste OPC)
Photographies © Gaëtan Chevrier
Projet finaliste Trophées de la construction BatiActu 2022 - Catégorie Rénovation Tertiaire
Sélectionné prix Aperçus 2023
























Nantes (44)























Le Bas Chantenay est un quartier industriel en mutation, en bord de Loire. Dans cette ambiance de collage urbain, une maison ferroviaire des années 20 est restructurée en bureaux, espaces nomades, collaboratifs et de réception pour l’entreprise IDEA.
Pour adoucir la cohabitation des activités logistiques et tertiaire, la proue de la parcelle est transformée en un jardin montant de plain-pied avec la maison, dont le rez-de-chaussée surélevé rappelait sa proximité avec la Loire. L’ensemble accompagne la restructuration du bas-Chantenay et son maillage piéton. Dans cet environnement changeant, le projet répond aux enjeux de surimpression architecturale et mémorielle, et met en valeur un patrimoine, si commun soit-il.
Débarrassée de son toit originel, la maison est réhabilitée en un socle maçonné à arcades surélevé d’un volume en résille bois. Dans la partie rénovée, la logique architectonique – une enceinte maçonnée subdivisée par un mur de refend et un noyau maçonné – est remobilisée au profit de nouvelles pratiques. Les espaces ouverts s’installent entre ces invariables, qui articulent zones calmes, collectives et techniques.
La rénovation se structure autour de deux découpes franches : une verticale pour la trémie et une horizontale pour l’arasement. Contre le refend, les planchers bois sont ouverts en un atrium transversal et toute hauteur. Ce vide induit de nouvelles qualités d’usages. Il diffuse un confort lumineux et des flux simplifiés dans le bâtiment. Au dernier niveau, la surélévation prolonge la logique et les qualités des étages inférieurs. Autour de l’atrium, un espace de réception, des salles de réunion et des terrasses-belvédère regardent le grand paysage industriel. Pour ne pas bouleverser la structure existante, la charpente repose directement sur les façades sans reprise intermédiaire. Elle forme un exosquelette de bois, habillé de modules de résille, filtrant les vues. Depuis l’extérieur, ce moucharabieh joue sur les perceptions cinétiques. Selon le point de vue, ce monolithe sans échelle fait écho aux volumes des hangars voisins ou révèle une dentelle bois.
L’atelier Fichtre est associé à la démarche architecturale pour appuyer la sensibilité du projet par leur regard artistique et conforter une ambiance globale unifiée. Ils proposent un garde-corps en bois cernant l’atrium à la façon d’un décor de théâtre inversé. Par son côté massif, il crée une barrière acoustique et séquence les déambulations. En lien, de généreux placards bois épaississent les parois existantes. Ils mettent à l’abri des zones de travail de l’atrium et offrent du stockage aux travailleurs nomades. Ces dispositifs favorisent les vues longues et structurent la circulation entre les différents espaces.
Dès la conception, le projet s’inscrit dans une démarche de réemploi. Le mobilier de bureau, réalisé par Fichtre, transforme ainsi les anciens bureaux de l’entreprise en grandes tablées pour les travailleurs de passages. Les matériaux déposés sont réinvestis : la charpente est réutilisée en bancs et les tuiles empilées de la couverture deviennent les murs moucharabieh de l’abri vélo.
Programme : Réhabilitation et surélévation accueillant des bureaux et espaces collaboratifs
Livré en 2022
Surface : 848 m²
Maître d’ouvrage : IDEA Groupe
Maître d’œuvre : LAUS architectes (mandataire)
Garde-corps atrium et mobiliers en réemploi : Fichtre
Bureaux d'études : Ascia (structure), Emenda (fluides), ECMS (économiste OPC)
Photographies © Gaëtan Chevrier
Projet finaliste Trophées de la construction BatiActu 2022 - Catégorie Rénovation Tertiaire
Sélectionné prix Aperçus 2023