
Ancenis (44)
Dédié à la recherche et au développement, le Manitou R&D Test Center exprime dans le grand paysage une présence simple. Cet outil de travail est évolutif sur les temps courts et longs, dans un confort d’usage et de lumière naturelle.
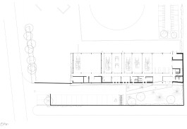
Pour séparer une zone publique noble d’une zone d’essais confidentielle, le R&D Test Center s’installe en fond de parcelle sur toute la largeur du terrain. Le R&D Test Center est une limite de confidentialité non étouffante : une progression vers l’intimité de Manitou, qui gratifie le visiteur, depuis le seuil de la rue, jusqu’à un belvédère qui valorise les machines en action sur la piste d’essai. Le bâtiment est un dispositif lumineux et flexible. Entièrement translucide, la façade se retire au Sud et à l’Ouest derrière une troisième peau, un bardage métallique clair et perforé. Outre son rôle de régulateur thermique, cette enveloppe uniforme permet de changer les fonctions du bâtiment sans modifier sa perception et ses qualités.
Sans la bouleverser, le R&D Test Center aspire à faire évoluer l’image opaque et hermétique du bâtiment industriel. Le R&D Test Center est un mouvement, un signal subtil qui agit sur la vue lointaine et la vue proche. Sa perception toujours changeante, cinétique, réagit à l’environnement : les états du ciel, les ambiances des jours et des saisons. Il transforme la confidentialité en appétence. Jamais dévoilée, son activité est suggérée : la nuit le bâtiment devient un théâtre d’ombres, de formes, de couleurs et de lumières.
Programme : Construction d’un atelier d’essai, de bureaux et de vestiaires
Livré en 2019
Surface : 780m²
Maître d’ouvrage : MANITOU
Maître d’œuvre : LAUS architectes et GTM Ouest - VINCI (mandataire)
Bureaux d'études : IDES (structure), Elogia (fluides et thermique)
Photographies © Laus
Projet sélectionné prix Aperçus 2019














Ancenis (44)













Dédié à la recherche et au développement, le Manitou R&D Test Center exprime dans le grand paysage une présence simple. Cet outil de travail est évolutif sur les temps courts et longs, dans un confort d’usage et de lumière naturelle.
Pour séparer une zone publique noble d’une zone d’essais confidentielle, le R&D Test Center s’installe en fond de parcelle sur toute la largeur du terrain. Le R&D Test Center est une limite de confidentialité non étouffante : une progression vers l’intimité de Manitou, qui gratifie le visiteur, depuis le seuil de la rue, jusqu’à un belvédère qui valorise les machines en action sur la piste d’essai. Le bâtiment est un dispositif lumineux et flexible. Entièrement translucide, la façade se retire au Sud et à l’Ouest derrière une troisième peau, un bardage métallique clair et perforé. Outre son rôle de régulateur thermique, cette enveloppe uniforme permet de changer les fonctions du bâtiment sans modifier sa perception et ses qualités.
Sans la bouleverser, le R&D Test Center aspire à faire évoluer l’image opaque et hermétique du bâtiment industriel. Le R&D Test Center est un mouvement, un signal subtil qui agit sur la vue lointaine et la vue proche. Sa perception toujours changeante, cinétique, réagit à l’environnement : les états du ciel, les ambiances des jours et des saisons. Il transforme la confidentialité en appétence. Jamais dévoilée, son activité est suggérée : la nuit le bâtiment devient un théâtre d’ombres, de formes, de couleurs et de lumières.
Programme : Construction d’un atelier d’essai, de bureaux et de vestiaires
Livré en 2019
Surface : 780m²
Maître d’ouvrage : MANITOU
Maître d’œuvre : LAUS architectes et GTM Ouest - VINCI (mandataire)
Bureaux d'études : IDES (structure), Elogia (fluides et thermique)
Photographies © Laus
Projet sélectionné prix Aperçus 2019