
Le Bignon (44)
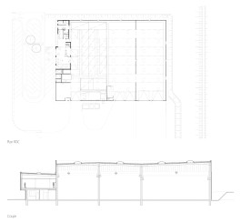
L’usine de chaudronnerie (CTN) est située dans une zone en cours d’urbanisation de type tertiaire et industriel. L’usine est enchâssée dans un terrain à forte déclivité. Le projet est composé de quatre travées parallèles à la rue des Fontenelles. La première d’entre-elles faisant front de rue à l’ouest, est occupée pour moitié par les bureaux sur deux niveaux, et pour moitié par des locaux de stockage ou techniques. Le volume proposé est clair, extensible et rejette ses zones d’accès et de service sur ses limites latérales, afin de permettre un front de rue végétalisé. Cette implantation permet une extension de l’usine vers le fond de parcelle, qui sera la continuation du principe d’installation déjà posé.
L’impact de l’usine est atténué sur tout son pourtour par un bandeau translucide réglé sur le gabarit des bureaux. Celui-ci, doublé de skydômes, offre aux ateliers une généreuse lumière naturelle. L’entrée du bâtiment est clairement identifiée par un creux jaune dans le volume de métal ondulé anthracite. Les bureaux organisés par cloisons modulaires sur deux niveaux sont traversants : ils ont vue et prise de lumière sur la rue à l’ouest, mais aussi sur les ateliers, de sorte que le lien entre bureaux d’études, administration et ouvriers se ressente continuellement. Le savoir-faire des soudeurs et leurs ouvrages sont valorisés.
Programme : Construction d’une usine de process, bureaux et vestiaires
Livré en 2015 (1ere extension) – Études en cours (2eme extension)
Surface : 3 250m² phase 1 + 1 000m² extension
Maître d’ouvrage : SCI Les Fontenelles
Maître d’œuvre : LAUS architectes (mandataire)
Bureaux d’études : Ascia (structure), NRGYS (fluides), Artxbat (économiste)
Photographies © Laus










Le Bignon (44)










L’usine de chaudronnerie (CTN) est située dans une zone en cours d’urbanisation de type tertiaire et industriel. L’usine est enchâssée dans un terrain à forte déclivité. Le projet est composé de quatre travées parallèles à la rue des Fontenelles. La première d’entre-elles faisant front de rue à l’ouest, est occupée pour moitié par les bureaux sur deux niveaux, et pour moitié par des locaux de stockage ou techniques. Le volume proposé est clair, extensible et rejette ses zones d’accès et de service sur ses limites latérales, afin de permettre un front de rue végétalisé. Cette implantation permet une extension de l’usine vers le fond de parcelle, qui sera la continuation du principe d’installation déjà posé.
L’impact de l’usine est atténué sur tout son pourtour par un bandeau translucide réglé sur le gabarit des bureaux. Celui-ci, doublé de skydômes, offre aux ateliers une généreuse lumière naturelle. L’entrée du bâtiment est clairement identifiée par un creux jaune dans le volume de métal ondulé anthracite. Les bureaux organisés par cloisons modulaires sur deux niveaux sont traversants : ils ont vue et prise de lumière sur la rue à l’ouest, mais aussi sur les ateliers, de sorte que le lien entre bureaux d’études, administration et ouvriers se ressente continuellement. Le savoir-faire des soudeurs et leurs ouvrages sont valorisés.
Programme : Construction d’une usine de process, bureaux et vestiaires
Livré en 2015 (1ere extension) – Études en cours (2eme extension)
Surface : 3 250m² phase 1 + 1 000m² extension
Maître d’ouvrage : SCI Les Fontenelles
Maître d’œuvre : LAUS architectes (mandataire)
Bureaux d’études : Ascia (structure), NRGYS (fluides), Artxbat (économiste)
Photographies © Laus