
Sucé-sur-Erdre (44)
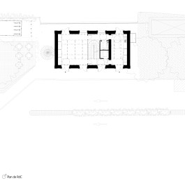
Ce Tiers Lieu est une programmation ouverte sur la ville, un lieu d’hospitalité et de proximités, qui s’adapte à différents modes et rythmes de vie. Le projet propose de hiérarchiser les accès et les flux et de créer une ambiance collective dans un espace de convivialité, en trouvant l’équilibre entre visibilité du public et sérénité d’un possible espace de travail.
Le projet propose une intervention minimale offrant de grands espaces bruts et modulables. L’effort se concentre sur des objets singuliers, et ce à plusieurs échelle, grâce à un escalier intérieur (objet architectural) et un ensemble de mobiliers (objet design).
A l’extérieur, une placette au Sud-Ouest du bâtiment est imaginée à l’ombre d’un arbre existant. Elle vient faire appel sobrement sur le devant du bâtiment et relève les qualités du déjà-là.
Programme : Réhabilitation de la maison de la gare de Sucé-sur-Erdre en tiers lieu, espaces de co-working et salles de réception
Livré en 2024
Surface : 300m²
Maître d’ouvrage : Ville de Sucé-sur-Erdre
Maître d’œuvre : LAUS architectes (mandataire), Socle (associés)
Bureaux d’études : BETEM (BET TCE)
Secteur ABF
Photographies © Simon Guesdon





















Sucé-sur-Erdre (44)





















Ce Tiers Lieu est une programmation ouverte sur la ville, un lieu d’hospitalité et de proximités, qui s’adapte à différents modes et rythmes de vie. Le projet propose de hiérarchiser les accès et les flux et de créer une ambiance collective dans un espace de convivialité, en trouvant l’équilibre entre visibilité du public et sérénité d’un possible espace de travail.
Le projet propose une intervention minimale offrant de grands espaces bruts et modulables. L’effort se concentre sur des objets singuliers, et ce à plusieurs échelle, grâce à un escalier intérieur (objet architectural) et un ensemble de mobiliers (objet design).
A l’extérieur, une placette au Sud-Ouest du bâtiment est imaginée à l’ombre d’un arbre existant. Elle vient faire appel sobrement sur le devant du bâtiment et relève les qualités du déjà-là.
Programme : Réhabilitation de la maison de la gare de Sucé-sur-Erdre en tiers lieu, espaces de co-working et salles de réception
Livré en 2024
Surface : 300m²
Maître d’ouvrage : Ville de Sucé-sur-Erdre
Maître d’œuvre : LAUS architectes (mandataire), Socle (associés)
Bureaux d’études : BETEM (BET TCE)
Secteur ABF
Photographies © Simon Guesdon